«Как начертить интерьерный план и не психануть в процессе»
2 онлайн вебинар-урока в ZOOM для всех, кто хочет научиться чертить в AutoCAD.
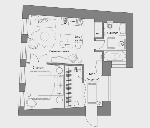
Инструменты AutoCAD и работу в нем будем рассматривать на примере чертежа однокомнатной квартиры.
Уроки проведет сотрудник дизайн-студии «Мастерская Анны Эрман».
21 и 28 сентября 2023 года
в 18:00 по мск.
Урок 1
Как с помощью AutoCAD:
начертить план квартиры по сделанным замерам;
расставить мебель;
начертить развертку;
сохранить чертежи, чтобы распечатать их, передать строителям или показать заказчику.
Урок 2
Ответы на вопросы по работе с AutoCAD для создания чертежей и разверток.
Скрытый текст. Доступен только зарегистрированным пользователям.Нажмите, чтобы раскрыть...
Новые складчины | страница 21
Категории
Страница 21 из 34

![[IMG]](proxy14p.php?image=https%3A%2F%2Fi.imgur.com%2FDfI6ZmM.png&hash=7d1758b1c5d36fb6106e1e29c5880a83&v=4)